пятница, 21 августа 2009 г.

Фри – Форма и параметры




elena-marhi на форуме задала задачку!
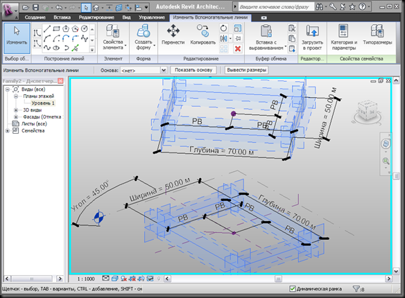
Предлагаю более простую задачу. Создать средствами концептуального моделирования кубик и задать ему 4 параметра - длину, ширину, высоту и угол поворота отн. базовой вершины.

  1. вопрос. Возможно ли это? Форма расползается и параметры ее не удерживают. Хотя можно запараметризовать напр. высоту точки или поворот нижней грани кубика.
  2. вопрос. Нужно ли? Так как в другом семействе (напр.обобщенные модели) все работает как раньше.
Да это возможно. Создать нужный кубик можно при помощи вспомогательных линий и опорных точек. Для этого необходимо создать из линий каркас будующего кубика, разместив основание и крышку на плоскостях опорных точек.


01

Выбрав обе "рамки", создать Фри-Форму.
02


Правда есть ограничения! Нельзя выставить угол поворота 0° и больше 180°...

Так что ответ на второй вопрос - почему нет? Только нужно помнить, что новые формы дружат с опорными линиями, а те в свою очередь с опорными точками!


вторник, 18 августа 2009 г.

Multi Core/Processors - Tech Note

На блоге Revit OpEd встретил интересную ссылку, о том что в Tech Note к Autodesk Revit Architecture 2010 есть рекомендации, как немного увеличить производительность программы, на много-процессорных машинах!

Там говорится о том, что Ревит на данный момент не на все 100% поддерживает много-процессорные машины (до 4 процессоров), но есть некоторые процессы, которые могут  это делать!

Это обработка соединения стен и печать! Что бы задействовать эти возможности, нужно в файл Revit.ini, дописать такие строки:

[PerformanceOptimizations]
ParallelWallJoins=ON
ParallelPrintProcessing=ON

Для отключения замените ON на OFF.

Обещают прирост производительности, на перечисленных операциях аж до 20% ! Правда только в системах Windows 32 с оперативкой до 3.5Гб, а на 64-х разрядных, якобы уже все включено и просят не беспокоиться!?

понедельник, 3 августа 2009 г.

SOLAR RADIATION TECHNOLOGY PREVIEW - Анализ солнечной радиации на поверхности концептуальной модели здания.

Интересная надстройка для REVIT ARCHITECTURE и REVIT MEP!

Позволяет в процессе создания концептуальной модели здания, анализировать влияние солнечной радиации на проектируемые объекты. Расчет инсоляции конечно не сделаешь, но можно получить представление о количестве тепла (солнечной радиации), получаемого зданием в различные промежутки времени и года.

01 Вот как все выглядит.

Сайт источник       Загрузить “Надстройку”